CiBEn 2025-konferenssi tarjosi osallisitujille laajan katsauksen kiertotalouden uusimpiin tutkimuksiin ja käytännön sovelluksiin rakentamisessa. Konferenssi toteutettiin Tampereen yliopiston professori Satu Huuhkan johdolla yhteistyössä useiden eurooppalaisten yliopistojen sekä ReCreate – Reusing precast concrete for a circular economy -hankkeen kanssa. Konferenssin järjestäjille kuuluu suuri kiitos hienosta tilaisuudesta, joka toimi kohtaamispaikkana alan tutkijoille ja käytännön toimijoille. Innostava tunnelma ja asiantuntevat keskustelut loivat erinomaiset puitteet uusien yhteistyömahdollisuuksien syntymiselle.
Säilyväksi, joustavaksi ja purettavaksi suunnittelun yhteensovittamisen tarve
CiBEn-konferenssissa Rakennustietosäätiö RTS:n Sini Saarimaa ja Tampereen yliopiston Tuomo Joensuu esittelivät EKAT-hankkeeseen liittyvän tutkimuksen Integrating Circular Economy Principles in Building Design. Tutkimuksessa käsiteltiin säilyvyyden, joustavuuden ja uudelleenkäytettävyyden, eli elinkaariominaisuuksien yhteensovittamista rakennussuunnittelussa. Elinkaariominaisuudet mahdollistavat rakennuksen pitkäaikaisen käytön muuttuvissa olosuhteissa sekä rakennukseen sidottujen resurssien hyödyntämisen rakennuksen purkamisen jälkeen.
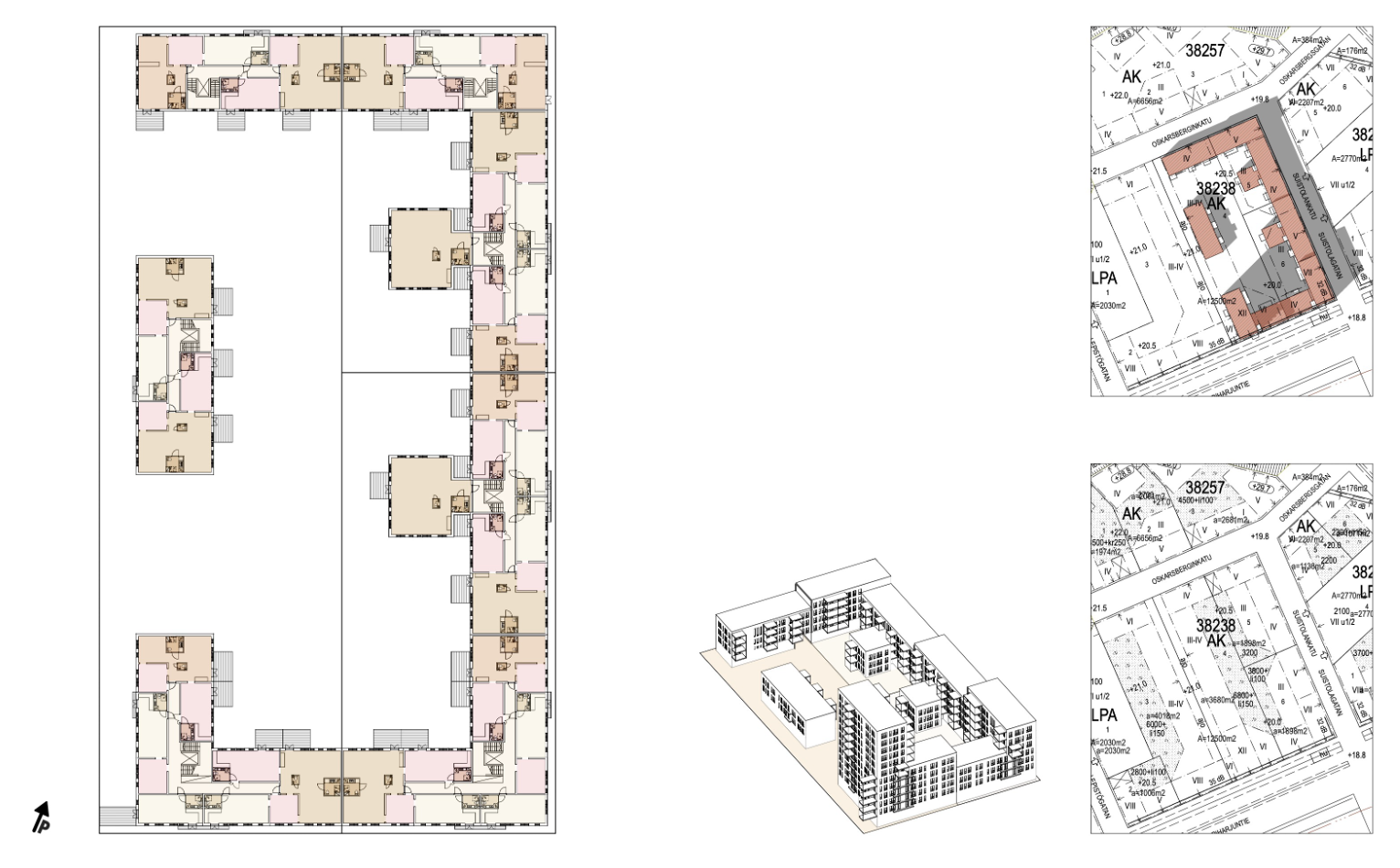
Tutkimus osa Elinkaariominaisuuksien arviointi ja toteuttaminen talonrakennushankkeessa (EKAT)-hanketta, jonka työssä on hyödynnetty laajan kirjallisuuden läpikäyntiä ja sen pohjalta monialaisen suunnitteluryhmän iteratiivista työskentelyä. Työskentelyssä asiantuntijat rakennusfysiikan, rakennesuunnittelun, LVI-järjestelmien ja arkkitehtuurin aloilta kehittivät ja yhteensovittivat kiertotaloutta edistäviä suunnitteluratkaisuja. Monialaisten työpajojen keskiössä oli kuvitteellisen rakennuksen suunnitelma, jonka avulla tutkijat pystyivät tunnistamaan säilyväksi, joustavaksi ja purettavaksi suunnittelun periaatteiden välisiä synergioita ja jännitteitä.
Kuvitteellinen kohde on suunniteltu edustamaan suomalaisessa kaupunkirakentamisessa laajasti hyödynnettävissä olevaa asuinkerrostaloa. Asuinkerrostalon tyyppi on lamellitalo, ja sen yksinkertainen muotokieli tukevat sekä rakentamisen tehokkuutta että toistettavuutta. Vaikka työ keskittyi ensisijaisesti kuvitteellisen kohteen teknisten ja toiminnallisten elinkaariominaisuuksien tarkasteluun, suunnitelmaa sovellettiin sen työstämisen aikana kokeellisesti kahteen ajankohtaisesti kehitettävään tonttiin kasvukeskuksissa, Helsingissä ja Tampereella.


Tutkimus on erityisen ajankohtainen paitsi kestävyyden edistämiseksi, myös kansallisen sääntelyn muuttuessa. Vuoden 2025 alussa voimaan tulleessa rakentamislaissa suorien kasvihuonepäästöjen vähentämisen ohella tavoitteena on kiertotalouden periaatteiden mukaisesti edistää rakennusten ja rakennusosien pitkäikäisyyttä. Tätä tavoitetta tukee lakiin sisältyvä tekninen vaatimus rakennuksen elinkaariominaisuuksista (39 §). Sääntelyssä tapahtunut muutos tekee tutkimuksen tarjoamista käytännön ratkaisuista entistä merkittävämpiä.
Konferenssin esitykset koottuna yhteen julkaisuun
CiBEn-konferenssissa 2025 Tampereella esitetyt tutkimukset ovat koottuna yhteen julkaisuun: Huuhka, S. (Ed.). 2025. Circularity in the Built Environment: Proceedings of the 2025 conference held in Tampere, Finland, September 16–18 2025. Tampere: Tampere University.
Julkaisun pysyvä linkki
EKAT-hankkeen tuloksista oma tilaisuus 21.10.2025
Rakennustietosäätiö RTS:n, AFRY Finland Oy:n, Tampereen yliopiston ja Sweco Finland Oy:n yhteisessä Elinkaariominaisuuksien arviointi ja toteuttaminen talonrakennushankkeessa (EKAT) -hankkeessa yhdistettiin elinkaariominaisuuksiin liittyvä tutkimustieto ja sen luova soveltaminen. Tavoitteena on ollut tarjota kiinteistö- ja rakentamisalan toimijoille entistä paremmat valmiudet huomioida rakennusten elinkaariominaisuudet suunnittelussa ja toteutuksessa. Osana työtä arvioitiin myös elinkaariominaisuuksien päästö- ja kustannusvaikutuksia elinkaarilaskennan kautta.
Lämpimästi tervetuloa kuulemaan yhteistyön tulokset ja keskustelemaan elinkaariominaisuuksista tilaisuuteemme 21.10.2025 Helsingin keskustassa – tai seuraamaan tapahtumaa kätevästi striimin välityksellä.


